Leave a Message

Thank you for your message. We will be in touch with you shortly.

See all photos
Glenna Dilone

150 Richardson Street 1A

$660,000 150 Richardson Street 1A, Brooklyn, NY 11211
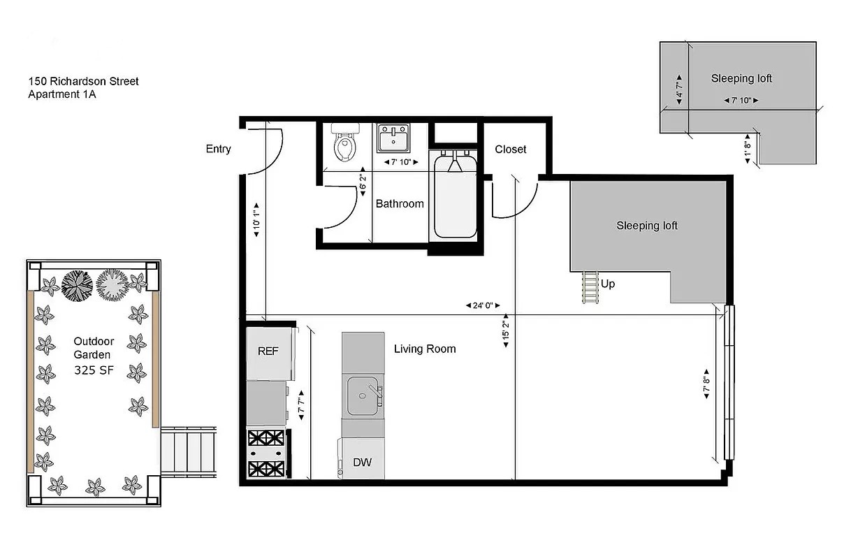
Welcome to this immaculate loft-style studio apartment with a private backyard, conveniently located near the L train in Williamsburg and just steps from Greenpoint. As you enter the space, you'll be greeted by the open and airy atmosphere created by the high ceilings and natural light.

The industrial chic aesthetic is enhanced by the striking exposed brick walls and concrete details, adding character and warmth to the interior. The pristine kitchen is a modern marvel, featuring waterfall quartzite countertops and a stainless steel farm sink. The state-of-the-art appliances include a dishwasher, Bertazzoni range and chimney-style hood. The space is completed by charming open shelving against a brick backdrop.

The lofted bed adds a unique touch to the layout, maximizing the use of floor space and creating a cozy sleeping nook. The unit comes with a new LG washer/dryer and has a storage unit right off the entrance.

One of the standout features of this apartment is the 325 square foot private backyard, unheard of for a studio! Imagine enjoying your morning coffee or hosting intimate gatherings in this secluded green space, a rare find in the heart of Williamsburg.

150 Richardson Street is a boutique building right off of Graham Avenue, one of the most bustling streets in Williamsburg full of restaurants and coffee shops. McGolrick and McCarren parks are only a few blocks away. Access Manhattan in just 10-15 minutes via the L train on Graham Ave.
  • Sold
    Status
  • 1
    Bathroom
  • 2015
    Year Built
  • 514 Sq.Ft.
    Living Area

Features & Amenities

Area & Lot

  • Status: Sold
  • Living Space: 514 Sq.Ft.
  • MLS® ID: RLS10985700
  • Type: Condo
  • Year Built: 2015
  • Neighborhood: Williamsburg
  • Architecture Styles: Loft

Interior

  • Total Bathrooms: 1
  • Full Bathrooms: 1
  • Laundry Room: Building Washer Dryer Install Allowed, In Unit
  • Flooring: Hardwood
  • Appliances: Dishwasher, Gas Oven, Washer
  • Other Interior Features: High Ceilings

Exterior & Building

  • Stories: 5
  • Heat Type: Central
  • Air Conditioning: Central Air
  • Other Exterior Features: Private Yard

Financial

  • Sales Price: $660,000
  • Real Estate Tax: $7,680/yr
  • HOA Fees: $371/mo

150 Richardson Street 1A

Work With Us

Deeply passionate about their work, they strive to provide their discerning clients with superior personal service, expert real estate guidance, and customized solutions for their needs.
Contact Us

Follow Us on Instagram